
| 種類 | 載荷重 (kN/m2) |
土の内部摩擦角 (度) |
|---|---|---|
| Ⅰ種 | 10 | 30 |
| Ⅱ種 | 15 | 25 |
| Ⅲ種 | 20 | 20 |
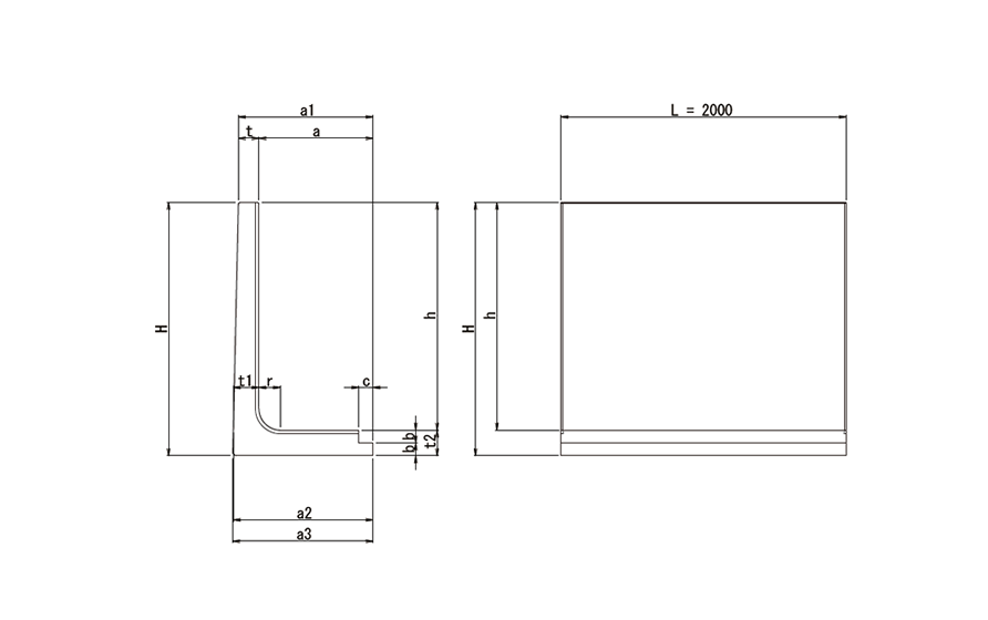
| 呼び名 | 種類 | h | a | a1 | a2 | a3 | t | t1 | t2 | b | c | r | H | L | 参考質量(kg) |
|---|---|---|---|---|---|---|---|---|---|---|---|---|---|---|---|
| 1000 | Ⅰ Ⅱ Ⅲ |
1000 | 420 | 520 | 540 | 542 | 100 | 120 | 120 | ― | ― | 80 | 1120 | 2000 | 845 |
| 1200 | Ⅰ Ⅱ Ⅲ |
1200 | 420 | 530 | 560 | 564 | 110 | 140 | 140 | ― | ― | 80 | 1340 | 2000 | 1103 |
| 1400 | Ⅰ Ⅱ Ⅲ |
1400 | 500 | 620 | 655 | 659 | 120 | 155 | 155 | ― | ― | 100 | 1555 | 2000 | 1422 |
| 1600 | Ⅰ Ⅱ Ⅲ |
1600 | 800 | 944 | 980 | 984 | 144 | 180 | 180 | 90 | 100 | 150 | 1780 | 2000 | 2071 |
| 1800 | Ⅰ Ⅱ Ⅲ |
1800 | 800 | 955 | 1000 | 1005 | 155 | 200 | 200 | 100 | 100 | 150 | 2000 | 2000 | 2469 |
| 2000 | Ⅰ Ⅱ Ⅲ |
2000 | 1000 | 1190 | 1240 | 1246 | 190 | 240 | 240 | 120 | 100 | 150 | 2240 | 2000 | 3459 |
| 2200 | Ⅰ Ⅱ Ⅲ |
2200 | 1000 | 1209 | 1260 | 1266 | 209 | 260 | 260 | 130 | 100 | 150 | 2460 | 2000 | 4011 |
| 2400 | Ⅰ Ⅱ Ⅲ |
2400 | 1000 | 1180 | 1280 | 1292 | 180 | 280 | 280 | 140 | 100 | 150 | 2680 | 2000 | 4332 |
| 2600 | Ⅰ Ⅱ Ⅲ |
2600 | 1000 | 1200 | 1300 | 1312 | 200 | 300 | 300 | 150 | 100 | 150 | 2900 | 2000 | 4949 |
※ (社)農業土木事業協会